FREEHOLD Industrial Estate

No Review
€6,900,000
Size 12 acres

Overview

Property ID: HPG-CL-004

Information

Description

Exceptional Commercial Development Opportunity – Priced for Immediate Sale

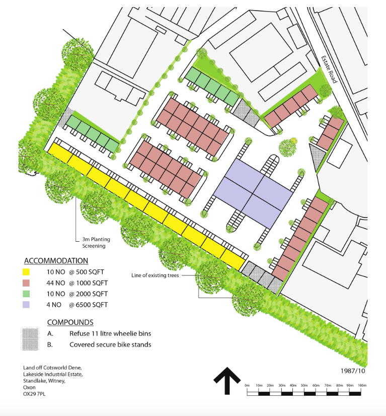
A rare opportunity to acquire a substantial and highly versatile landholding offering significant commercial and industrial development potential. Available at a knock-down price for a quick sale, this site represents an outstanding investment opportunity.

Property Overview

  • Total Area: 11.9 acres
    • 7.9 acres Zoned Commercial Land
    • 4 acres Agricultural Land & Internal Roads

Planning & Development

  • Full Planning Permission for 5 large industrial units
  • Positive Pre-Planning Applications for 68 small and medium industrial units
  • Certificate of Lawful Use in place

Reports & Documentation Available

  • Phase I Geological Report
  • Phase II Geological Report
  • Biodiversity Report
  • Analytical Report
  • 2019 Valuation Report
  • Planning Application Documentation

This site is ideally suited for phased industrial development, logistics, light manufacturing, or mixed commercial use, with all key groundwork completed to allow for rapid progression.

Serious investment potential with immediate upside.

The Site

The site offers approximately 12 acres: 7.9 acres Commercial Land
4 acres Aricultural Land & Roads

The Industrial Estate is situated approximately 2 miles from Standlake, an Oxfordshire village in which a number of small to medium size businesses are located.

Standlake is surrounded by and well connected to a plethora of sizeable towns including Witney, approximately 5 miles to the north, and Abingdon which is about 10 miles to the south east. The city of Oxford is circa 10 miles to the east.

Standlake Industrial Estate is located off the A415 with direct links to the A40 and A420 and is approximately 25 miles from junction 8 of the M40. The estate is surrounded by a range of industrial occupiers and backs onto agricultural land.


Pre App 1

Town and Country Planning Act 1990 APPLICATION: 21/01951/PREAPP PROPOSAL:

To construct a small industrial site with units

AT: Land West Of Cotswold Dene Standlake

Policies: OS1NEW Presumption in favour of sustainable development

I write in regard to your enquiry received by the Council on the 28.05.2021 seeking the pre-application views of the Local Planning Authority. The relevant information is set out below. Please be aware of the disclaimer at the end of this letter. If you have any questions relating to the advice given, please contact the Case Officer.

Site Characteristics and Constraints:
The site adjoins the Standlake Industrial Estate within the open countryside accessed off the A415. The Industrial Estate lies to the North of the settlement of Standlake. The site has a history of contamination and drainage problems. The historic maps also indicate an area of archaeological importance in the area. A bridleway 360/8/10 runs to the south of the site.

Planning Assessment:
It is unclear whether the site forms part of the Standlake Industrial Estate but nevertheless appears to relate well to the existing employment buildings and defined southern boundary. Policy E1 of the adopted Local Plan supports the expansion of existing employment uses and as such, the principle of this development may be acceptable subject to compliance with other local plan policies.

Given its open countryside location, one of the main considerations will be the visual impact of the new industrial units which would be viewed from nearby roads and bridleway to the south. The submitted details indicate units with a ridge height of 7.2m which would be appear to be in-keeping with other buildings within the estate. Appropriate landscaping would help to soften and mitigate the impact of the development and would have ecological/biodiversity benefits. Any planting should be native and whilst it is recognised that there is some evergreen planting along the southern boundary, this should be re-inforced and replaced where necessary with appropriate woodland planting. The southern boundary is now quite exposed in places and in views from the south new industrial buildings are quite prominent. The mix of units is welcomed and the Council’s Business Development Manager agrees that there is a healthy appetite for such units.

The views of the County Council (OCC) have not been sought as part of this pre application response as they operate their own pre-application advice service and would comment on matters such as transport, drainage and archaeology. Their comments would be valuable in this respect as I understand that there is a routing agreement for HGV’s from the industrial estate and there have been drainage issues on the site. The historic maps also indicate an area on archaeological interest.

Please note that all applications should demonstrate a net gain in biodiversity where possible


Pre App 2

APPLICATION: 22/01989/PREAPP

PROPOSAL: 5 x Industrial units

AT: Lakeside Industrial Park Cotswold Dene Standlake

I write in regard to your enquiry received by the Council on the 18.07.2022 seeking the pre-application views of the Local Planning Authority. The relevant information is set out below. Please be aware of the disclaimer at the end of this letter. If you have any questions relating to the advice given, please contact the Case Officer.

Policies

  • OS1NEW Presumption in favour of sustainable development
  • OS2NEW Locating development in the right places
  • OS3NEW Prudent use of natural resources
  • OS4NEW High quality design
  • OS5NEW Supporting infrastructure
  • E1NEW Land for employment
  • T1NEW Sustainable transport
  • T2NEW Highway improvement schemes
  • T3NEW Public transport, walking and cycling
  • T4NEW Parking provision
  • EH2 Landscape character
  • EH3 Biodiversity and Geodiversity
  • EH7 Flood risk
  • EH8 Environmental protection
  • EH9 Historic environment
  • EH15 Scheduled ancient monuments
  • DESGUI West Oxfordshire Design Guide
  • NPPF 2021

Details

  • Price
    €6,900,000
  • Property ID
    Property ID: HPG-CL-004
  • Area Size
    Size 12 acres
  • Land Area Size
    Land Area 12 acres
  • Rooms
    Rooms
  • Bedrooms
    Bedrooms 0
  • Year Built
    Year Built

Description

Exceptional Commercial Development Opportunity – Priced for Immediate Sale

A rare opportunity to acquire a substantial and highly versatile landholding offering significant commercial and industrial development potential. Available at a knock-down price for a quick sale, this site represents an outstanding investment opportunity.

Property Overview

  • Total Area: 11.9 acres
    • 7.9 acres Zoned Commercial Land
    • 4 acres Agricultural Land & Internal Roads

Planning & Development

  • Full Planning Permission for 5 large industrial units
  • Positive Pre-Planning Applications for 68 small and medium industrial units
  • Certificate of Lawful Use in place

Reports & Documentation Available

  • Phase I Geological Report
  • Phase II Geological Report
  • Biodiversity Report
  • Analytical Report
  • 2019 Valuation Report
  • Planning Application Documentation

This site is ideally suited for phased industrial development, logistics, light manufacturing, or mixed commercial use, with all key groundwork completed to allow for rapid progression.

Serious investment potential with immediate upside.

The Site

The site offers approximately 12 acres: 7.9 acres Commercial Land
4 acres Aricultural Land & Roads

The Industrial Estate is situated approximately 2 miles from Standlake, an Oxfordshire village in which a number of small to medium size businesses are located.

Standlake is surrounded by and well connected to a plethora of sizeable towns including Witney, approximately 5 miles to the north, and Abingdon which is about 10 miles to the south east. The city of Oxford is circa 10 miles to the east.

Standlake Industrial Estate is located off the A415 with direct links to the A40 and A420 and is approximately 25 miles from junction 8 of the M40. The estate is surrounded by a range of industrial occupiers and backs onto agricultural land.


Pre App 1

Town and Country Planning Act 1990 APPLICATION: 21/01951/PREAPP PROPOSAL:

To construct a small industrial site with units

AT: Land West Of Cotswold Dene Standlake

Policies: OS1NEW Presumption in favour of sustainable development

I write in regard to your enquiry received by the Council on the 28.05.2021 seeking the pre-application views of the Local Planning Authority. The relevant information is set out below. Please be aware of the disclaimer at the end of this letter. If you have any questions relating to the advice given, please contact the Case Officer.

Site Characteristics and Constraints:
The site adjoins the Standlake Industrial Estate within the open countryside accessed off the A415. The Industrial Estate lies to the North of the settlement of Standlake. The site has a history of contamination and drainage problems. The historic maps also indicate an area of archaeological importance in the area. A bridleway 360/8/10 runs to the south of the site.

Planning Assessment:
It is unclear whether the site forms part of the Standlake Industrial Estate but nevertheless appears to relate well to the existing employment buildings and defined southern boundary. Policy E1 of the adopted Local Plan supports the expansion of existing employment uses and as such, the principle of this development may be acceptable subject to compliance with other local plan policies.

Given its open countryside location, one of the main considerations will be the visual impact of the new industrial units which would be viewed from nearby roads and bridleway to the south. The submitted details indicate units with a ridge height of 7.2m which would be appear to be in-keeping with other buildings within the estate. Appropriate landscaping would help to soften and mitigate the impact of the development and would have ecological/biodiversity benefits. Any planting should be native and whilst it is recognised that there is some evergreen planting along the southern boundary, this should be re-inforced and replaced where necessary with appropriate woodland planting. The southern boundary is now quite exposed in places and in views from the south new industrial buildings are quite prominent. The mix of units is welcomed and the Council’s Business Development Manager agrees that there is a healthy appetite for such units.

The views of the County Council (OCC) have not been sought as part of this pre application response as they operate their own pre-application advice service and would comment on matters such as transport, drainage and archaeology. Their comments would be valuable in this respect as I understand that there is a routing agreement for HGV’s from the industrial estate and there have been drainage issues on the site. The historic maps also indicate an area on archaeological interest.

Please note that all applications should demonstrate a net gain in biodiversity where possible


Pre App 2

APPLICATION: 22/01989/PREAPP

PROPOSAL: 5 x Industrial units

AT: Lakeside Industrial Park Cotswold Dene Standlake

I write in regard to your enquiry received by the Council on the 18.07.2022 seeking the pre-application views of the Local Planning Authority. The relevant information is set out below. Please be aware of the disclaimer at the end of this letter. If you have any questions relating to the advice given, please contact the Case Officer.

Policies

  • OS1NEW Presumption in favour of sustainable development
  • OS2NEW Locating development in the right places
  • OS3NEW Prudent use of natural resources
  • OS4NEW High quality design
  • OS5NEW Supporting infrastructure
  • E1NEW Land for employment
  • T1NEW Sustainable transport
  • T2NEW Highway improvement schemes
  • T3NEW Public transport, walking and cycling
  • T4NEW Parking provision
  • EH2 Landscape character
  • EH3 Biodiversity and Geodiversity
  • EH7 Flood risk
  • EH8 Environmental protection
  • EH9 Historic environment
  • EH15 Scheduled ancient monuments
  • DESGUI West Oxfordshire Design Guide
  • NPPF 2021

Details

  • Price
    €6,900,000
  • Property ID
    Property ID: HPG-CL-004
  • Area Size
    Size 12 acres
  • Land Area Size
    Land Area 12 acres
  • Rooms
    Rooms
  • Bedrooms
    Bedrooms 0
  • Year Built
    Year Built

Mortgage Title

  • Principal Amount
  • Years
  • Monthly Payment
  • Balance Payable With Interest
  • Total Down Payment

Reviews

0
out of 5

5.0 Blended Score

No Review

Similar Properties